Apartamenty Pod Topolami

Apartament nr 20

Zarezerwowany

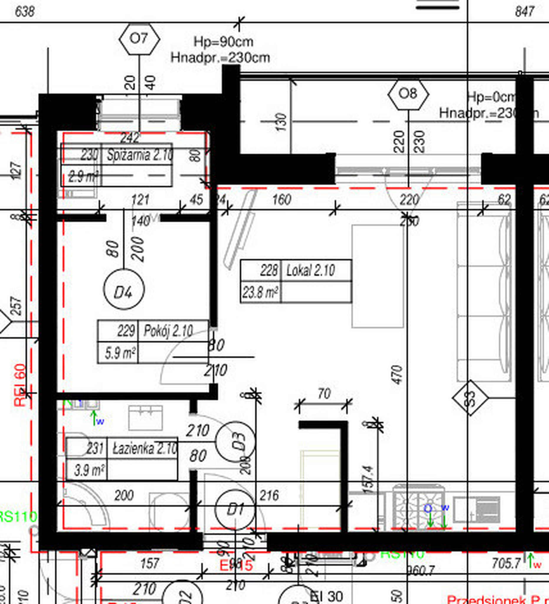
Apartament 20

Apartament znajduje się na drugim piętrze z oknami skierowanymi na południowy zachód. W skład mieszkania wchodzi salon z aneksem kuchennym, sypialnia i łazienka. Do apartamentu należy również duży balkon.

Powierzchnia: 36,41 m2

Balkon o powierzchni 5,2 m2

Apartament 20

Twoje wymarzone mieszkanie czeka na Ciebie! Odkryj komfort, wygodę i harmonię w naszych nowoczesnych apartamentach. Zyskaj własny kawałek nieba i poczuj się jak w domu już dziś. Zapraszamy do spełnienia swoich marzeń o własnym lokum.